Skip to content
Portfolio
ABOUT
CONTACT
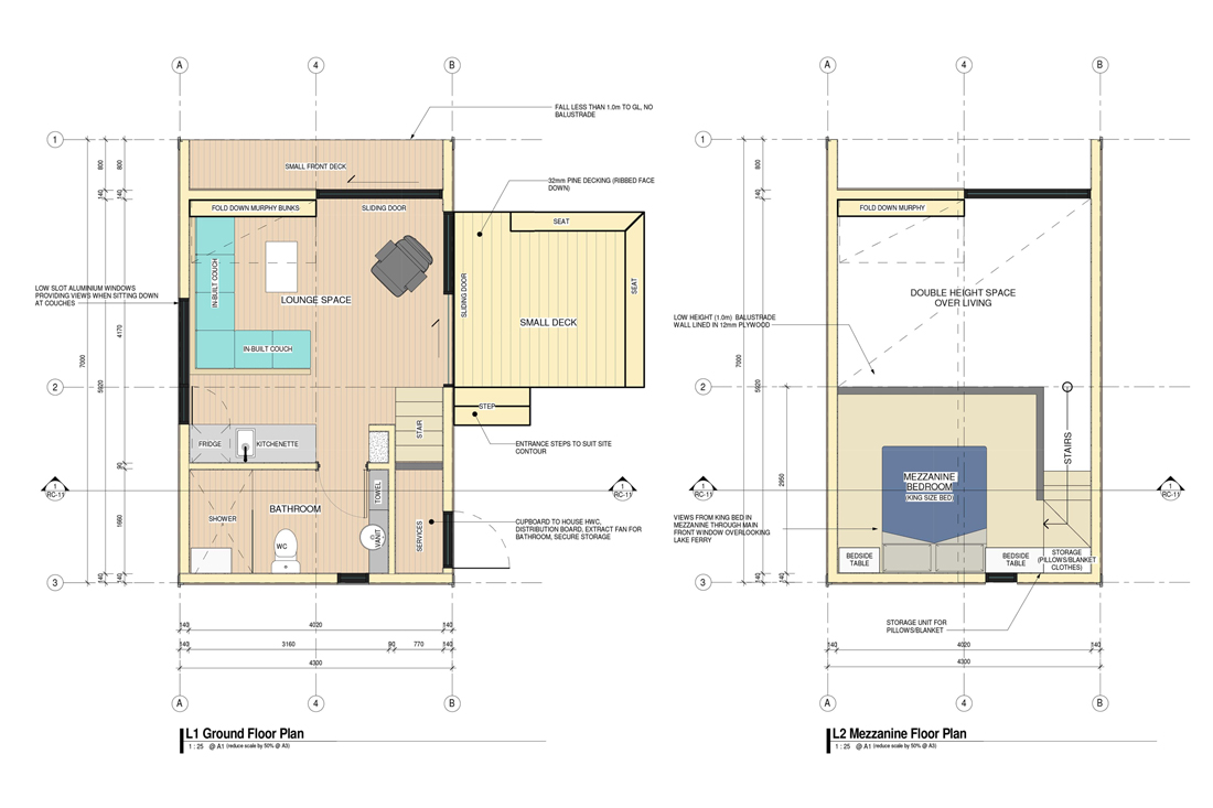
Lake Ferry Hotel
Lake Ferry Hotel
james
2018-09-24T10:29:20+00:00
Project Description